Ежедневный прием и обработка заявок:
телефон
+7 (812) 507 97 88
почта
stuksi9@gmail.com
Задайте вопрос напрямую в:
телеграмм
Telegram
вотсап
WhatsApp
загрузить
Загрузить свой проект на просчет
Загрузить проект
Close
Главная
Готовые проекты
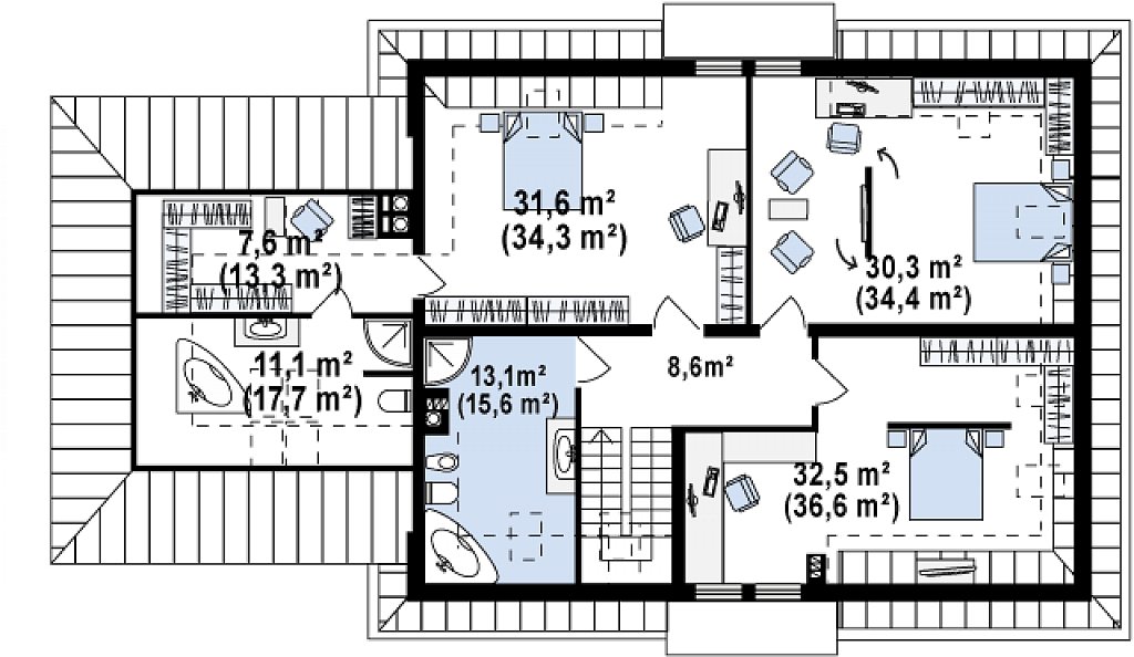
Проект дома «Фрегат»

Проект дома «Фрегат»

дом0
дом1 дом2 дом3 дом4 дом5 дом6
12 лет

Строим дома и бани полностью под ключ

200+

Построенных объектов по всей области

300+

Проектов под любой бюджет в нашем каталоге

10 лет

Предоставляем гарантию 10 лет на наши дома

Варианты строительства дома по проекту «Фрегат»

работы

Подготовительные работы

1
Разработка индивидуального проекта
2
Подготовка документов для согласования в БТИ
3
Предварительный выезд инженера на строительный объект
4
Пробное бурение фундамента в 3-х точках (геология)
работы

Фундамент

1
Свайно-винтовой фундамент
2
Забивные железо-бетонные сваи.
работы

Стены

1
Несущей стены клееный брус 160 х 185 мм
2
Скрепление венца дома деревянными нагелями
3
Осада (садной брус) в оконных и дверных створах дома
4
Скрепление венца дома деревянными нагелями
5
Осада (садной брус) в оконных и дверных створах дома
+
Показать весь список
работы

Подготовительные работы

1
Металлочерепица, оцинкованная, толщина стали 0.5 мм (полиэстер)
2
Стропильная система 50х200 мм
3
Подшивка свесов карнизов (софиты): Docke
4
Водосточная система: Docke
работы

Инженерные коммуникации

1
Электричество и электрооборудование
2
Водоснабжение и водоотведение (канализация)
3
Отопление
4
Вентиляция
работы

Дополнительно

1
2-камерный стеклопакет Rehau, фурнитура Rot, антимоскитные сетки
2
Отделка оконных проемов, углов комнат
3
Утепленная металлическая дверь, толщина металла 1.5 мм.
4
Скрепление венца дома деревянными нагелями
5
Осада (садной брус) в оконных и дверных створах дома
+
Показать весь список

Характеристики

Балкон:
Есть
Веранда:
Есть
Габариты:
21x11
Гараж:
Есть
Жилых комнат:
7
Мансарда:
Есть
Общая площадь:
430
Окно на крыше:
Есть
Эркер:
Есть
Этажность:
1

Примерная стоимость из разных материалов

Профилированный брус:
7 353 011 руб.
Клееный брус:
10 366 088 руб.
Двойной брус:
8 514 013 руб.
Лафет
8 292 870 руб.
Рубленное бревно:
8 458 727 руб.
Оцилиндрованное бревно:
8 292 870 руб.
Каркасный дом:
5 528 580 руб.
SIP-панели:
8 071 727 руб.
Кирпич:
9 785 587 руб.
Газобетон:
6 219 653 руб.
Газосиликатные блоки:
6 219 653 руб.
Керамзитоблок:
6 219 653 руб.
Арболит:
6 468 439 руб.
Керамические блоки:
7 353 011 руб.
Теплоблоки:
7 463 583 руб.
Пеноблоки:
5 528 580 руб.

Варианты оплаты

1
Наличные
2
Безналичные

Последние выполненные проекты

Каменный одноэтажный коттедж с мансардой

Площадь:
156 м 2
Габариты:
8х10
Комнат:
5
Дата постройки:
29.09.2020
Адрес:
Выборг

Одноэтажный дом

Площадь:
77 м 2
Габариты:
11х7
Комнат:
4
Дата постройки:
21.09.2020
Адрес:
Ковалёво

Каменный коттедж с мансардой

Площадь:
153 м 2
Габариты:
13х12
Комнат:
4
Дата постройки:
12.09.2020
Адрес:
Левашово

Каменный коттедж с мансардой

Площадь:
190 м 2
Габариты:
13х8
Комнат:
5
Дата постройки:
04.09.2020
Адрес:
Всеволожск

Заказать строительство

Заполните форму, укажите интересующую Вас комплектацию, вопросы или пожелания. Менеджеры перезвонят Вам в течение дня.