Ежедневный прием и обработка заявок:
телефон
+7 (812) 507 97 88
почта
stuksi9@gmail.com
Задайте вопрос напрямую в:
телеграмм
Telegram
вотсап
WhatsApp
загрузить
Загрузить свой проект на просчет
Загрузить проект
Close
Главная
Готовые проекты
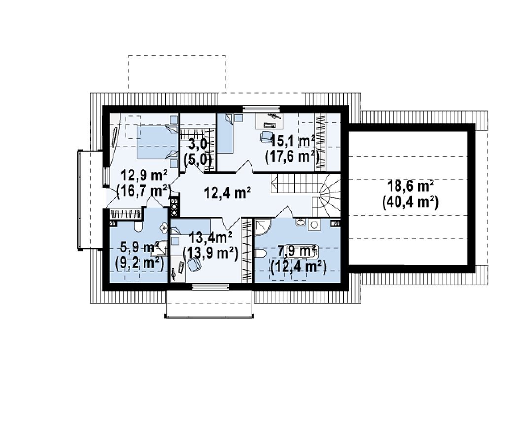
Проект дома «Можайка»

Проект дома «Можайка»

дом0
дом1 дом2 дом3
12 лет

Строим дома и бани полностью под ключ

200+

Построенных объектов по всей области

300+

Проектов под любой бюджет в нашем каталоге

10 лет

Предоставляем гарантию 10 лет на наши дома

Варианты строительства дома по проекту «Можайка»

работы

Подготовительные работы

1
Разработка индивидуального проекта
2
Подготовка документов для согласования в БТИ
3
Предварительный выезд инженера на строительный объект
4
Пробное бурение фундамента в 3-х точках (геология)
работы

Фундамент

1
Свайно-винтовой фундамент
2
Забивные железо-бетонные сваи.
работы

Стены

1
Несущей стены клееный брус 160 х 185 мм
2
Скрепление венца дома деревянными нагелями
3
Осада (садной брус) в оконных и дверных створах дома
4
Скрепление венца дома деревянными нагелями
5
Осада (садной брус) в оконных и дверных створах дома
+
Показать весь список
работы

Подготовительные работы

1
Металлочерепица, оцинкованная, толщина стали 0.5 мм (полиэстер)
2
Стропильная система 50х200 мм
3
Подшивка свесов карнизов (софиты): Docke
4
Водосточная система: Docke
работы

Инженерные коммуникации

1
Электричество и электрооборудование
2
Водоснабжение и водоотведение (канализация)
3
Отопление
4
Вентиляция
работы

Дополнительно

1
2-камерный стеклопакет Rehau, фурнитура Rot, антимоскитные сетки
2
Отделка оконных проемов, углов комнат
3
Утепленная металлическая дверь, толщина металла 1.5 мм.
4
Скрепление венца дома деревянными нагелями
5
Осада (садной брус) в оконных и дверных створах дома
+
Показать весь список

Характеристики

Балкон:
Есть
Веранда:
Есть
Габариты:
19x9
Гараж:
Есть
Жилых комнат:
6
Мансарда:
Есть
Общая площадь:
320
Окно на крыше:
Есть
Эркер:
Есть
Этажность:
1

Примерная стоимость из разных материалов

Профилированный брус:
5 472 006 руб.
Клееный брус:
7 714 294 руб.
Двойной брус:
6 336 007 руб.
Лафет
6 171 435 руб.
Рубленное бревно:
6 294 864 руб.
Оцилиндрованное бревно:
6 171 435 руб.
Каркасный дом:
4 114 290 руб.
SIP-панели:
6 006 863 руб.
Кирпич:
7 282 293 руб.
Газобетон:
4 628 576 руб.
Газосиликатные блоки:
4 628 576 руб.
Керамзитоблок:
4 628 576 руб.
Арболит:
4 813 719 руб.
Керамические блоки:
5 472 006 руб.
Теплоблоки:
5 554 292 руб.
Пеноблоки:
4 114 290 руб.

Варианты оплаты

1
Наличные
2
Безналичные

Последние выполненные проекты

Каменный одноэтажный коттедж с мансардой

Площадь:
156 м 2
Габариты:
8х10
Комнат:
5
Дата постройки:
29.09.2020
Адрес:
Выборг

Одноэтажный дом

Площадь:
77 м 2
Габариты:
11х7
Комнат:
4
Дата постройки:
21.09.2020
Адрес:
Ковалёво

Каменный коттедж с мансардой

Площадь:
153 м 2
Габариты:
13х12
Комнат:
4
Дата постройки:
12.09.2020
Адрес:
Левашово

Каменный коттедж с мансардой

Площадь:
190 м 2
Габариты:
13х8
Комнат:
5
Дата постройки:
04.09.2020
Адрес:
Всеволожск

Заказать строительство

Заполните форму, укажите интересующую Вас комплектацию, вопросы или пожелания. Менеджеры перезвонят Вам в течение дня.