Ежедневный прием и обработка заявок:
телефон
+7 (812) 507 97 88
почта
stuksi9@gmail.com
Задайте вопрос напрямую в:
телеграмм
Telegram
вотсап
WhatsApp
загрузить
Загрузить свой проект на просчет
Загрузить проект
Close
Главная
Готовые проекты
Проект дома «Рио»

Проект дома «Рио»

дом0
дом1 дом2 дом3 дом4 дом5 дом6 дом7 дом8
12 лет

Строим дома и бани полностью под ключ

200+

Построенных объектов по всей области

300+

Проектов под любой бюджет в нашем каталоге

10 лет

Предоставляем гарантию 10 лет на наши дома

Варианты строительства дома по проекту «Рио»

работы

Подготовительные работы

1
Разработка индивидуального проекта
2
Подготовка документов для согласования в БТИ
3
Предварительный выезд инженера на строительный объект
4
Пробное бурение фундамента в 3-х точках (геология)
работы

Фундамент

1
Свайно-винтовой фундамент
2
Забивные железо-бетонные сваи.
работы

Стены

1
Несущей стены клееный брус 160 х 185 мм
2
Скрепление венца дома деревянными нагелями
3
Осада (садной брус) в оконных и дверных створах дома
4
Скрепление венца дома деревянными нагелями
5
Осада (садной брус) в оконных и дверных створах дома
+
Показать весь список
работы

Подготовительные работы

1
Металлочерепица, оцинкованная, толщина стали 0.5 мм (полиэстер)
2
Стропильная система 50х200 мм
3
Подшивка свесов карнизов (софиты): Docke
4
Водосточная система: Docke
работы

Инженерные коммуникации

1
Электричество и электрооборудование
2
Водоснабжение и водоотведение (канализация)
3
Отопление
4
Вентиляция
работы

Дополнительно

1
2-камерный стеклопакет Rehau, фурнитура Rot, антимоскитные сетки
2
Отделка оконных проемов, углов комнат
3
Утепленная металлическая дверь, толщина металла 1.5 мм.
4
Скрепление венца дома деревянными нагелями
5
Осада (садной брус) в оконных и дверных створах дома
+
Показать весь список

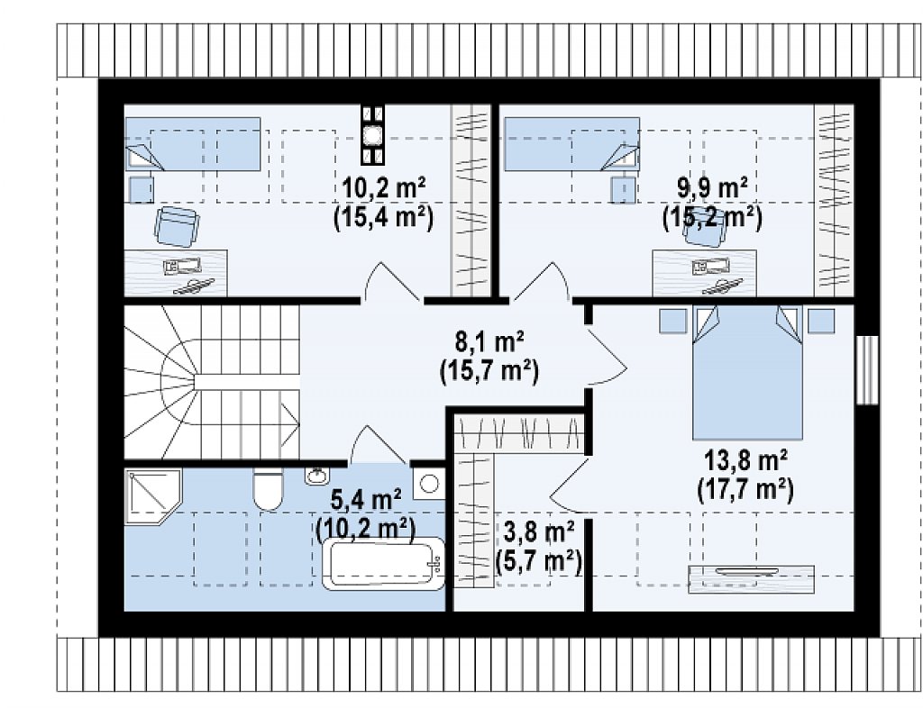
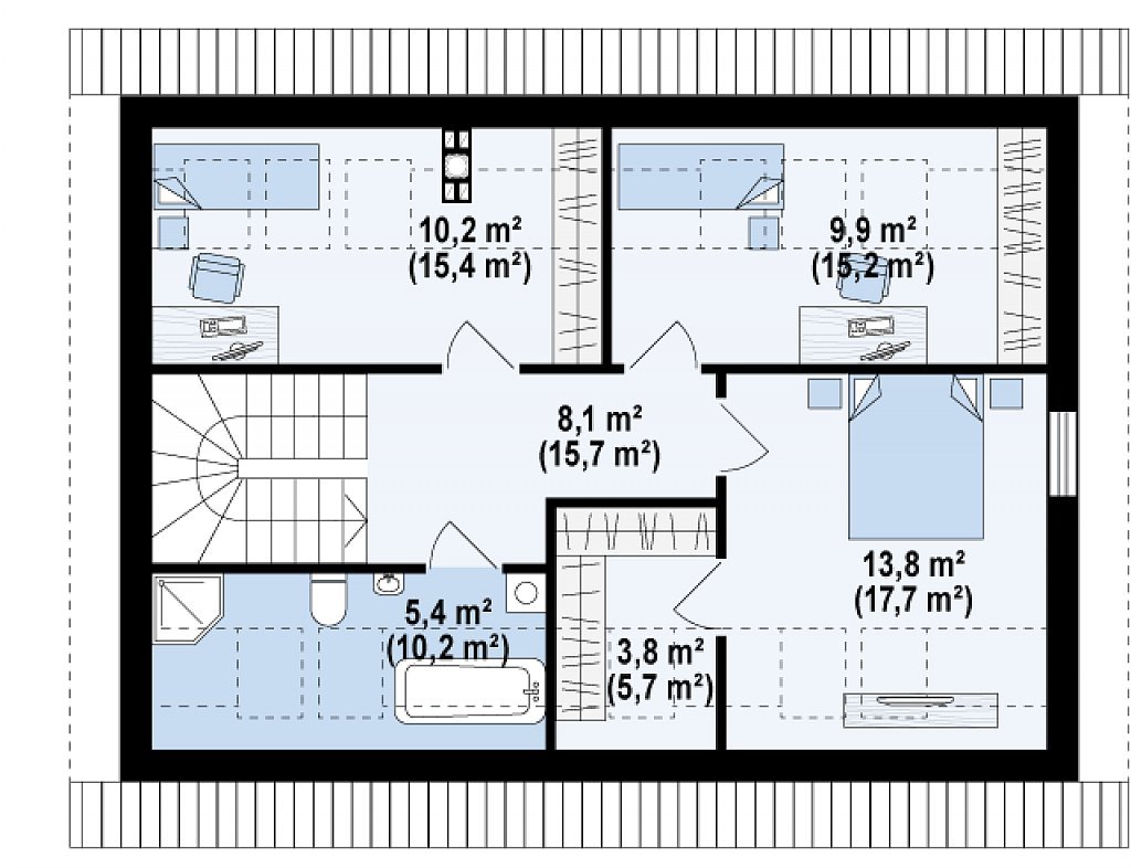
Характеристики

Веранда:
Есть
Габариты:
11,64x8,34
Жилых комнат:
4
Мансарда:
Есть
Общая площадь:
166
Окно на крыше:
Есть
Печка:
Есть
Этажность:
1

Примерная стоимость из разных материалов

Профилированный брус:
2 838 606 руб.
Клееный брус:
4 001 794 руб.
Двойной брус:
3 286 807 руб.
Лафет
3 201 435 руб.
Рубленное бревно:
3 265 464 руб.
Оцилиндрованное бревно:
3 201 435 руб.
Каркасный дом:
2 134 290 руб.
SIP-панели:
3 116 063 руб.
Кирпич:
3 777 693 руб.
Газобетон:
2 401 076 руб.
Газосиликатные блоки:
2 401 076 руб.
Керамзитоблок:
2 401 076 руб.
Арболит:
2 497 119 руб.
Керамические блоки:
2 838 606 руб.
Теплоблоки:
2 881 292 руб.
Пеноблоки:
2 134 290 руб.

Варианты оплаты

1
Наличные
2
Безналичные

Последние выполненные проекты

Каменный одноэтажный коттедж с мансардой

Площадь:
156 м 2
Габариты:
8х10
Комнат:
5
Дата постройки:
29.09.2020
Адрес:
Выборг

Одноэтажный дом

Площадь:
77 м 2
Габариты:
11х7
Комнат:
4
Дата постройки:
21.09.2020
Адрес:
Ковалёво

Каменный коттедж с мансардой

Площадь:
153 м 2
Габариты:
13х12
Комнат:
4
Дата постройки:
12.09.2020
Адрес:
Левашово

Каменный коттедж с мансардой

Площадь:
190 м 2
Габариты:
13х8
Комнат:
5
Дата постройки:
04.09.2020
Адрес:
Всеволожск

Заказать строительство

Заполните форму, укажите интересующую Вас комплектацию, вопросы или пожелания. Менеджеры перезвонят Вам в течение дня.