Ежедневный прием и обработка заявок:
телефон
+7 (812) 507 97 88
почта
stuksi9@gmail.com
Задайте вопрос напрямую в:
телеграмм
Telegram
вотсап
WhatsApp
загрузить
Загрузить свой проект на просчет
Загрузить проект
Close
Главная
Готовые проекты
Проект дома «Милтон»

Проект дома «Милтон»

дом0
дом1 дом2 дом3 дом4 дом5
12 лет

Строим дома и бани полностью под ключ

200+

Построенных объектов по всей области

300+

Проектов под любой бюджет в нашем каталоге

10 лет

Предоставляем гарантию 10 лет на наши дома

Варианты строительства дома по проекту «Милтон»

работы

Подготовительные работы

1
Разработка индивидуального проекта
2
Подготовка документов для согласования в БТИ
3
Предварительный выезд инженера на строительный объект
4
Пробное бурение фундамента в 3-х точках (геология)
работы

Фундамент

1
Свайно-винтовой фундамент
2
Забивные железо-бетонные сваи.
работы

Стены

1
Несущей стены клееный брус 160 х 185 мм
2
Скрепление венца дома деревянными нагелями
3
Осада (садной брус) в оконных и дверных створах дома
4
Скрепление венца дома деревянными нагелями
5
Осада (садной брус) в оконных и дверных створах дома
+
Показать весь список
работы

Подготовительные работы

1
Металлочерепица, оцинкованная, толщина стали 0.5 мм (полиэстер)
2
Стропильная система 50х200 мм
3
Подшивка свесов карнизов (софиты): Docke
4
Водосточная система: Docke
работы

Инженерные коммуникации

1
Электричество и электрооборудование
2
Водоснабжение и водоотведение (канализация)
3
Отопление
4
Вентиляция
работы

Дополнительно

1
2-камерный стеклопакет Rehau, фурнитура Rot, антимоскитные сетки
2
Отделка оконных проемов, углов комнат
3
Утепленная металлическая дверь, толщина металла 1.5 мм.
4
Скрепление венца дома деревянными нагелями
5
Осада (садной брус) в оконных и дверных створах дома
+
Показать весь список

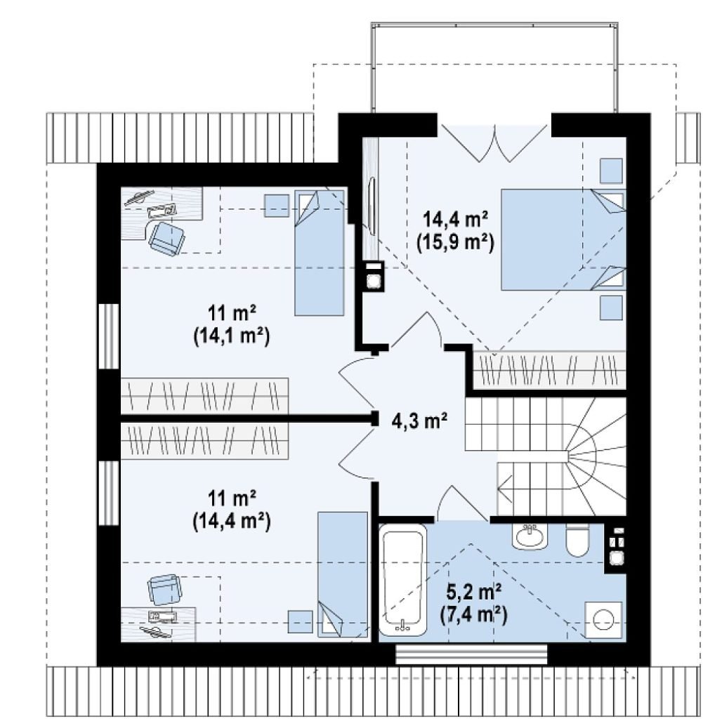
Характеристики

Веранда:
Есть
Габариты:
9x9
Жилых комнат:
5
Мансарда:
Есть
Навес:
Есть
Общая площадь:
141
Окно на крыше:
Есть
Этажность:
1

Примерная стоимость из разных материалов

Профилированный брус:
2 411 117 руб.
Клееный брус:
3 399 131 руб.
Двойной брус:
2 791 820 руб.
Лафет
2 719 305 руб.
Рубленное бревно:
2 773 691 руб.
Оцилиндрованное бревно:
2 719 305 руб.
Каркасный дом:
1 812 870 руб.
SIP-панели:
2 646 790 руб.
Кирпич:
3 208 780 руб.
Газобетон:
2 039 479 руб.
Газосиликатные блоки:
2 039 479 руб.
Керамзитоблок:
2 039 479 руб.
Арболит:
2 121 058 руб.
Керамические блоки:
2 411 117 руб.
Теплоблоки:
2 447 375 руб.
Пеноблоки:
1 812 870 руб.

Варианты оплаты

1
Наличные
2
Безналичные

Последние выполненные проекты

Каменный одноэтажный коттедж с мансардой

Площадь:
156 м 2
Габариты:
8х10
Комнат:
5
Дата постройки:
29.09.2020
Адрес:
Выборг

Одноэтажный дом

Площадь:
77 м 2
Габариты:
11х7
Комнат:
4
Дата постройки:
21.09.2020
Адрес:
Ковалёво

Каменный коттедж с мансардой

Площадь:
153 м 2
Габариты:
13х12
Комнат:
4
Дата постройки:
12.09.2020
Адрес:
Левашово

Каменный коттедж с мансардой

Площадь:
190 м 2
Габариты:
13х8
Комнат:
5
Дата постройки:
04.09.2020
Адрес:
Всеволожск

Заказать строительство

Заполните форму, укажите интересующую Вас комплектацию, вопросы или пожелания. Менеджеры перезвонят Вам в течение дня.